大阪市東成区の美容室&*again緑橋の改装できていています!|大阪市東成区の美容室 &*again(アンドアゲイン)緑橋駅 徒歩3分

大阪市東成区中本3-17-6 S-RESIDENCE緑橋Serio1F

ブログ

ブログ

Friday14Feb2020
その他
大阪市東成区の美容室&*again緑橋の改装できていています!
こんにちは、大阪市東成区の美容院アンドアゲイン緑橋の

オーナースタイリストのタカハシナオキです

大阪市東成区の美容室&*again緑橋の改装できていています!
ということで、去年の11月くらいから徐々にモデルチェンジしてきていましたが

いよいよ、全貌が明らかになってきました!(; ・`д・´)

今で、80%ほど工事も完了し月曜日のお休みの度に変化があります

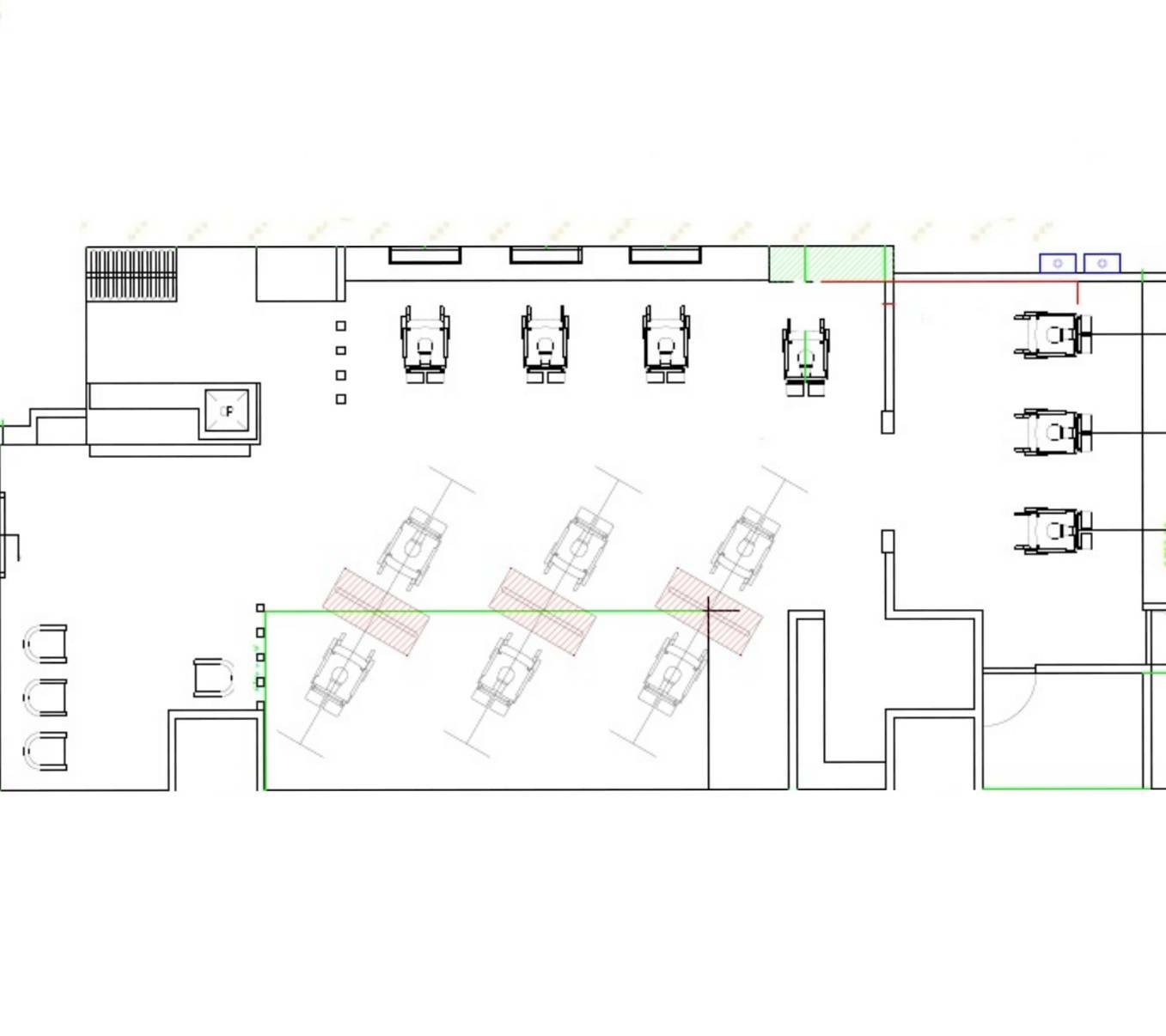
ビフォーは、こんな感じの配置でしたが

アフターは、こんな感じです\(^o^)/

なにがかわったの?!という感じですが。。。

まずは、わかりやすいところでいうと

席が3面増えました。真ん中の棚をなくしてそこに対面式ドレッサーを配置することで

合計7席から、10席に変わりました

そして、それにともなって真ん中の天井にも明るく照らすために照明器具を3つ追加

そして、席数が増えた事にともなってシャンプー台も1個追加しました


営業中にスマホで簡単にとってみました(;^_^A

また、完璧に完成したら一眼レフカメラで綺麗に撮りなおしますね(^_-)-☆

お楽しみに♪




☆.。.:*・♪・*:..。☆.。.:*♪

大阪市東成区緑橋駅の美容室【&*again-hair design-アンドアゲインヘアーデザイン】はキレイな髪を創り続けるヘアサロンです。

大阪府大阪市東成区中本3-17-6 S-RESIDENCE緑橋SERIO 1F 電話番号 06-6657-6777

お客様の理想の髪型に近づけるよう、しっかりとお客様のお悩み、要望をカウンセリングで相談したうえでイメージを合わせて骨格や髪質、

くせ毛などの毛髪の状態をみながらスタッフがプランニングし施術をします。あなたにあったオシャレな髪型を考えます。

掲載情報も、雑誌、カジカジ、リクエストQJ、スタイリストディレクトリ、リジョブ、ZIP!、すまたん、キラリア、カリスマTV、ホットペッパー、イ—パーク等、出演、掲載多数!

女性(レディース)のカット、男性(メンズ)カットも得意です!カット、コンテスト入賞者多数、担当指名料金無料です。のでお気軽にご指名ください。

※予約に限りがございますのでご予約はお早めにお願いいたします。人気スタイリストは、予約が埋まってしまう可能性大です。もちろん、当日予約も可。

デザインもお任せください。技術もこだわり、豊富なメニューも多数力を入れて用意しています。

おすすめは、ツヤ髪をつくるなら『FLOWDIA』シャンプー、トリートメント、ヘアマスク、髪質改善の質感調整できるシステムトリートメント取り扱いサロン。

ノーマルパーマ、エアウェーブ、ダメージレスパーマ取り扱い。ヘナに関しては、ピアンタカラーです

ヘアカラーは、デミのアソートアリア、フュージョニストをメインにウェラ、シュワルツコフのマニキュアなどをポイントで使っています。

毛の強度を上げる『ケアブリーチのファイバープレックス』ナノスチームでの質感調整できるトリートメントなどのケアメニューや縮毛矯正も人気です。

頭皮のお悩み、疲れのある方には、オーガニックの香りの選べるスパクリームを使ったヘッドスパも人気です。等々色々な、サービスも受けれます。

キッズスペースも完備、お子さま連れでも安心してご利用できます。赤ちゃんの筆取り扱い店。今、話題の最新メニュー多数取り扱いもしています。

『サイトプライン』『強髪』のHSCシリーズで育毛にも力を入れています。アイラッシュグローエッセンスでマツエクのお悩み改善。

光脱毛、光フォトフェイシャル、歯のセルフホワイトニングなど髪以外の『 美 』を追求されたい方にも感度の高い方々にも喜んで頂いています。

あなたにあったメニューをお探しください。メニューページや、予約リンクから探す事ができます。

前日予約がオススメです。ご新規様へクーポンページ限定クーポンや、ネット予約限定クーポンなどもお見逃しなくご利用くださいませ。

口コミ評価は、当ホームページのお客様の声やホットペッパー、グーグル、イ—パークなどからご確認くださいませ。

営業時間もAM10:00?PM7:00最終受付とわりと城東区東成区緑橋エリアでは遅くまで営業していますのでお仕事帰りのご来店もお待ちしております。

大阪市東成区の町の方々の美活性化応援サロン!

美容師として優秀な人を育てる教育にも力を入れています。正社員は、もちろん美容学生アルバイトやママさん美容師の求人も行っておりますので

ご興味のある方はお気軽にサロン見学にぜひお越しください。

2020.2.14